บริษัท ฮาชิโมโตะ โซเกียว (ไทยแลนด์) จำกัด - Company Logo
ผู้รับเหมา
Japanese Flag Japanese Company

บริษัท ฮาชิโมโตะ โซเกียว (ไทยแลนด์) จำกัด

เราได้ให้บริการออกแบบ และตรวจคุณภาพบ้าน, คอนโด และโครงการทาวน์โฮม โดยทีมงานผู้เชี่ยวชาญ ลูกค้าจึงสามารถมั่นใจได้ว่าจะได้รับบ้านคุณภาพหลังผ่านการตรวจสอบกับเรา
ผู้รับเหมา
Japanese Flag Japanese Company

บริษัท ฮาชิโมโตะ โซเกียว (ไทยแลนด์) จำกัด


เราเป็นบริษัทจากประเทศญี่ปุ่นที่ให้บริการสนับสนุนการก่อสร้างบ้าน คอนโดมิเนียม หรืออาคารอื่นๆ และเป็นตัวกลางในการติดต่อระหว่างผู้ผลิตกับลูกค้า  มีเครือข่ายที่ใกล้ชิดกับผู้ผลิตหลายรายในญี่ปุ่น นำเข้า-ส่งออก เฟอร์นิเจอร์ ห้องอาบน้ำ ห้องครัว และผลิตภัณฑ์อื่นๆ เราจัดหาผลิตภัณฑ์พร้อมบริการติดตั้ง และสนับสนุนลูกค้าของเราด้วยการค้นหาผลิตภัณฑ์ที่ตรงกับความต้องการ และจำหน่ายสินค้าเฟอร์นิเจอร์ รวมถึงเครื่องใช้ภายในบ้าน เน้นคุณภาพ ความใส่ใจ และบริการต่างๆที่ครบครัน  



บริการของเรา


ตรวจสอบคุณภาพที่อยู่อาศัย


  • บ้าน
  • คอนโด
  • ทาวน์โฮม

1.ติดต่อกับทีมงาน HST
แจ้งชื่อโครงการ, ที่อยู่ หมายเลขห้อง (ถ้ามี) พื้นที่ใช้สอยกี่ตารางเมตร, ประเภทบ้าน เช่น บ้านเดี่ยว, บ้านแฝด, ทาวน์โฮม,คอนโดฯ 
2.นัดหมายวัน-เวลาตรวจ
นัดหมายวัน-เวลา เพื่อให้ทีมงานHSTเข้าไปตรวจงาน (แนะนำนัดล่วงหน้าอย่างน้อย1สัปดาห์) และทางลูกค้าวางเงินมัดจำยืนยันการตรวจบ้าน
3.ทีมงานดำเนินการตรวจ (QC)
ดำเนินการตรวจบ้าน ตามรายการที่กำหนด โดยปกติใช้เวลาตรวจประมาณ 2-3ชั่วโมง (ระยะเวลาขึ้นอยู่กับจำนวนที่อยู่ ขนาดพื้นที่)
4.ส่งผลรายงานการตรวจ
ทีมงานจัดส่งผลการตรวจให้ลูกค้าโดยใช้เวลา 2-3วัน ส่งเป็นไฟล์ PDF ให้ลูกค้าผ่านทาง E-Mail และลูกค้าชำระเงินมัดจำที่เหลือ



ออกแบบบ้าน เขียนแบบบ้าน


บริการออกแบบภาพเสมือนจริง CG (3D)

บริการออกแบบบ้านพักอาศัย อาคารสำนักงาน ภาพเสมือนจริง CG (3D) โดยผู้เชี่ยวชาญ เพื่อให้คุณสามารถนำแบบตกแต่งไปใช้ดูก่อนการตัดสินใจก่อสร้างจริง

บริการเขียนแบบแปลนพิมพ์เขียว

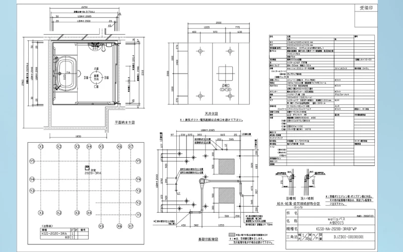
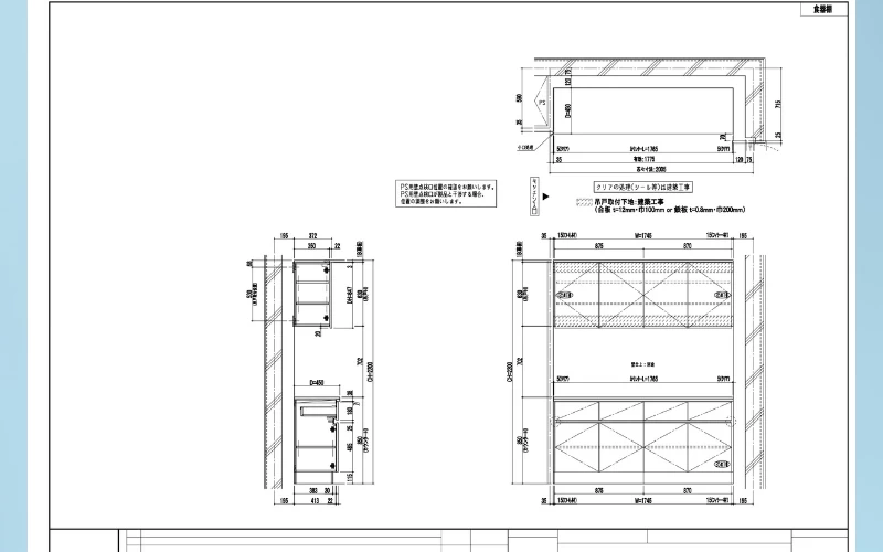
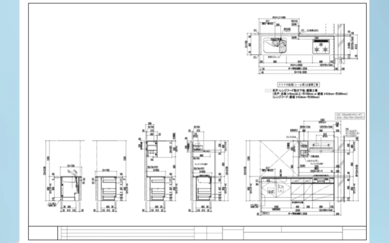
บริการเขียนแบบแปลนพิมพ์เขียวสำหรับที่พักอาศัย อาคารสำนักงาน ร้านค้า เหมาะสำหรับให้ผู้รับเหมาประเมินราคาก่อสร้าง บริการเขียนแบบสมบูรณ์ทั้งแบบสถาปัตยกรรม แบบวิศวกรรมโครงสร้าง แบบระบบไฟฟ้า และแบบระบบสุขาภิบาล สำหรับยื่นขออนุญาตก่อสร้าง เราพร้อมให้คำแนะนำในการออกแบบรูปทรง หน้าตาบ้านหรืออาคารของท่านให้มีความสวยงาม มีเอกลักษณ์โดดเด่นเฉพาะตัว 


ผลงานของเรา



ผลงานการตรวจคอนโด

  • QC คอนโด Huaikhwang
  • QC คอนโด Onnut
  • QC คอนโด @Jatujak

ผลงานการออกแบบ CG

ผลงานการออกแบบพิมพ์เขียว

เงื่อนไขและบริการ

บริการอื่น ๆ
ออกแบบโครงสร้างอาคาร
ติดต่อขอใบเสนอราคา